2025 New Build - 2BR/2BA in Gold West Park
For Sale
2025 New Build - 2BR/2BA in Gold West Park
2025 New Build - 2BR/2BA in Gold West Park
2025 New Build - 2BR/2BA in Gold West Park
For Sale
1/8

$136,000

2 bd
|
2.0 ba
|
840 sqft
|
2025 built
Permanent Foundation No Space Rent Conventional Financing Eligible You Own the Land

15252 Seneca Rd SPACE 13, Victorville, CA 92392

A
Andreus Meza
Renova Properties
Call

Description

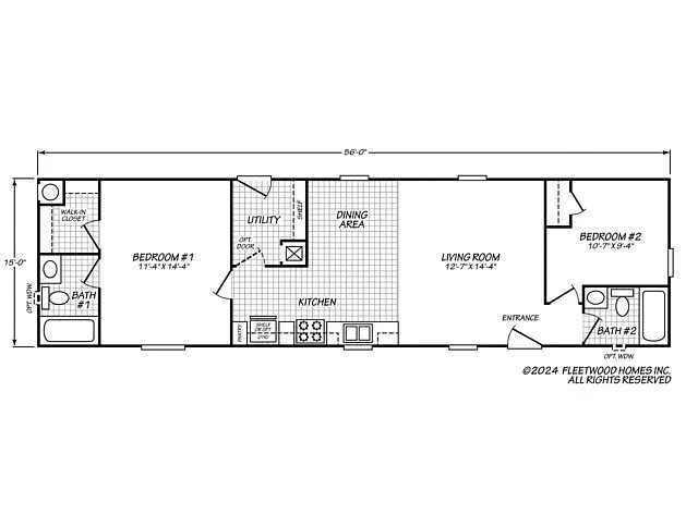
Welcome to your brand-new manufactured home, currently being built at the factory and scheduled for delivery soon to space #13 at Gold West Park! This stunning 2025 single-story home offers 840 sq ft of thoughtfully designed living space with 2 bedrooms and 2 full bathrooms. Step inside to discover a bright, open floor plan featuring beautiful wood-look flooring throughout the main living areas. The well-appointed kitchen showcases warm oak cabinetry, stainless steel appliances, quartz countertops, and plenty of storage space. Natural light floods through large windows, creating an inviting atmosphere perfect for everyday living. Both bedrooms offer comfortable carpeting and ample closet space, while the two full bathrooms provide modern fixtures and finishes. Additional features include: • Covered 2-car carport for protected parking • In-unit laundry hookups for convenience • Front yard with curb appeal • Single-story living - no stairs! • Brand new construction with 2025 modern standards Located in Gold West, a well-maintained gated family community with street lighting. Space rent is just $800/month. Public water and sewer utilities included. This is a rare opportunity to own a never-occupied, factory-fresh home at an incredible value of just $162/sqft. Don't miss your chance to be the first to call this beautiful home yours!

Park & Place Hot Deal Analysis
Powered by AI market insights
Brand-New 2BR/2BA Gem in Growing Gold West Park

Be the first owner of a pristine, brand-new home in Gold West Park, featuring modern, energy-smart design and a turnkey setup. This fresh build is designed for low maintenance and predictable monthly costs, so you can enjoy worry-free living from day one. A growing Victorville area and convenient location make this a smart, long-term investment that you can start enjoying now.

Move-in ready comfort

Brand-new construction means zero renovations, energy efficiency from day one, and a pristine, worry-free lifestyle—delivering instant equity versus older, comparable homes.

Prime Victorville access

Easy access to major highways, shopping, and schools keeps your daily routine simple and affordable.

Growth and equity potential

A fast-growing market and ongoing development around Victorville boost future value and rental demand, giving you strong long-term upside.

Location
Estimated Monthly Payment
0% $0 50%
4% 12%

Est. Monthly Payment

$0/mo

Principal & Interest only


Get Pre-Qualified Today!

Compare lenders & find the best rates

Manufactured on Permanent Foundation

This is not a park home — it sits on land you own outright. No monthly space rent. No park rules.

  • No Space Rent — own the land free & clear
  • Permanent Foundation — eligible for conventional & FHA/VA loans
  • Titled as Real Property — same as a stick-built home
  • Privacy & Space — no shared walls, HOA, or park management
Find Conventional Lenders
Request Info

Contact Today For More Info

Andreus Meza

858-776-2862

Renova Properties

$136,000
2bd | 2.0ba | 840 sqft
Call Agent